CONSTRUCTIONS NEUVES
Villa YOLI



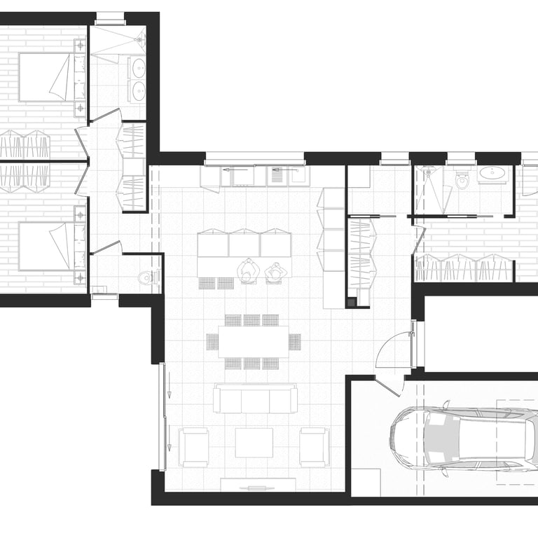
PROJET YOLI
Type de projet : Construction neuve
Année : 2026
Lieu : Rosel, Calvados (14)
Missions : Conception architecturale, Permis de construire


Projet YOLI
Construction neuve | Avant-Projet, Permis de construire | Photos à venir.
MAISON INDIVIDUELLE
Rosel, Calvados (14) | 2026
